Nawigacja
Projekt, wdrożenie, porządek techniczny

Smart home, LAN, Wi-Fi, CCTV i infrastruktura techniczna dla domu i mieszkania.

Mieszkanie / stan deweloperski

Mieszkanie na osiedlu Marina V

Józefosław pod Warszawą Projekt + wdrożenie

Kompleksowe przygotowanie infrastruktury technicznej dla mieszkania: sieć LAN i Wi-Fi, smart home, monitoring, projekt szafy rack oraz dokumentacja wspierająca wykonanie i dalszą rozbudowę.

CCTV Dokumentacja HVAC LAN Rack Smart Home Wi-Fi
Case Study Smart Home i Sieci w mieszkaniu na osiedlu Marina V w Józefosławiu
Początek inwestycji

Projekt rozpoczęty zanim ruszyły prace wykończeniowe

Inwestorzy zgłosili się do nas zaraz po podpisaniu umowy deweloperskiej, zanim rozpoczęły się jakiekolwiek prace wykończeniowe.

Od początku zależało im na systemie smart home, który będzie realnie poprawiał komfort życia, ale pozostanie wizualnie dyskretny i spójny z estetyką mieszkania. Docelowy styl wnętrza określili jako modern classic, dlatego technologia nie mogła być przypadkowym dodatkiem ani dominować przestrzeni.

Wspólnie z inwestorami i architektką przeanalizowaliśmy problemy, które znali z poprzednich mieszkań. Dzięki temu już na etapie koncepcji udało się określić nie tylko listę funkcji, ale przede wszystkim logikę działania całego systemu i miejsca, w których technologia miała naprawdę rozwiązywać konkretne problemy.

Typ inwestycji
Mieszkanie w stanie deweloperskim
Lokalizacja
Józefosław pod Warszawą
Zakres
Projekt, wdrożenie, konfiguracja
Styl wnętrza
Modern classic
Priorytet inwestorów

Smart home miało być integralną częścią mieszkania, a nie technologicznym dodatkiem zaburzającym styl modern classic.

Założenia projektu

Co miało zostać rozwiązane od początku

Nienatrętna integracja smart home z eleganckim, klasycznym wnętrzem.
Eliminacja problemów z temperaturą i nieintuicyjną obsługą ogrzewania oraz klimatyzacji.
Stworzenie lokalnego systemu zarządzania domem bez zależności od chmury producentów.
Pełne pokrycie mieszkania siecią Wi-Fi i dobrze zaplanowane punkty LAN do pracy na dużych plikach.
Przygotowanie infrastruktury tak, aby była nowoczesna dziś i nie zestarzała się zbyt szybko.
Zakres realizacji

Jeden projekt, wiele warstw infrastruktury

HVAC i zarządzanie temperaturą

Sterowanie głowicami grzejnikowymi, integracja klimatyzatorów, punkty pomiaru temperatury, czujniki otwartego okna oraz automatyzacje ograniczające przegrzewanie pomieszczeń i nadmierne koszty eksploatacji.

Pomiar energii

Pomiar zużycia energii w domu, umożliwiający weryfikację rozliczeń oraz bieżące śledzenie realnego poboru prądu przez poszczególne elementy systemu.

Automatyka oświetlenia

Sterowanie obwodami i źródłami światła z wykorzystaniem urządzeń Shelly, pomiar energii, zdalne sterowanie, sceny oraz ściemnianie zależne od pory dnia, przy zachowaniu pełnej redundancji dzięki fizycznym przełącznikom.

Sieć LAN i Wi-Fi

Plan pokrycia Wi-Fi oparty o heatmapę, odpowiednio rozmieszczone punkty dostępowe, przemyślane punkty LAN oraz przygotowanie infrastruktury pod szybki transfer danych i wieloletnią użyteczność.

Rolety, zasłony i prywatność

Elektryczne rolety rzymskie i zasłony z automatyzacjami, które zapewniają prywatność nocą, łagodne budzenie rano i wygodną obsługę z poziomu panelu zarządzania domem.

CCTV i kontrola dostępu

Kamera skierowana na balkon i drzwi balkonowe oraz inteligentny domofon przy drzwiach wejściowych z podglądem, rozpoznawaniem osób i wygodnymi metodami dostępu.

Modele 3D

Interaktywne modele tej realizacji

Co możesz zobaczyć
Heatmapa Wi-Fi

Model pokazujący plan pokrycia sieci bezprzewodowej.

CCTV / Zasięg kamer

Wizualizacja pola widzenia kamer i obszaru obserwacji.

HVAC / AC

Schemat działania klimatyzacji i logiki komfortu.

Oświetlenie

Rozmieszczenie i logika obwodów oświetleniowych.

Sterowanie oświetleniem

Schemat sterowania obwodami i scenami świetlnymi.

Zasłony i rolety

Automatyka zasłon i scenariusze prywatności.

Komfort i oszczędność

Temperatura bez zgadywania i bez walki z głowicą grzejnika

Jednym z największych problemów w poprzednich mieszkaniach inwestorów było sterowanie temperaturą. Zimą bywało zbyt gorąco, a rozliczenia za ciepło systemowe były wyraźnie wyższe, niż powinny. Tradycyjna skala na głowicy grzejnika nie daje precyzyjnej kontroli, szczególnie gdy w mieszkaniu różne pomieszczenia mają inną ekspozycję i inne zyski ciepła.

Docelowo zaplanowaliśmy po jednej sterowanej głowicy na każdy grzejnik oraz po dwa punkty pomiaru temperatury w pomieszczeniach, w których grzejniki występują. Dzięki temu system nie opiera się na jednym, przypadkowym odczycie i nie przegrzewa wnętrz. Dodatkowo w logice wykorzystane zostały czujniki otwartego okna.

Bardzo ważne było też to, aby automatyzacje nie działały wbrew użytkownikowi. Nastawa użytkownika zawsze ma pierwszeństwo przed logiką. Dzięki temu nie dochodzi do irytujących sytuacji znanych np. z hoteli, gdzie system „wie lepiej”, a użytkownik nie rozumie, dlaczego nic się nie dzieje.

Efekt był bardzo konkretny: większa przewidywalność, wyższy komfort i około 20% oszczędności na cieple systemowym względem doświadczeń inwestorów z wcześniejszych mieszkań.

Lokalna integracja HVAC

Klimatyzacja, która nie wymaga pilota ani chmury producenta

Drugim filarem komfortu było odpowiednie podejście do klimatyzacji. Już na etapie projektu skomunikowaliśmy się z firmą montującą system klimatyzacji, aby dobrać jednostki, które umożliwiają integrację z systemem zarządzania budynkiem bez uzależnienia od chmury producenta.

Klimatyzatory zostały skonfigurowane tak, aby ich codzienna obsługa z poziomu pilotów była w praktyce zbędna. Logika wykorzystuje te same dane środowiskowe, które pracują dla ogrzewania: pomiar temperatury, stan okien oraz scenariusze obecności i nieobecności.

Dzisiaj użytkownicy nie muszą pamiętać o pilotach ani zastanawiać się, jaka kombinacja ustawień zadziała najlepiej. Wszystko jest dostępne z poziomu przeglądarki internetowej i działa na lokalnym serwerze, a system przygotowuje odpowiedni klimat przed powrotem mieszkańców do domu.

Energia i weryfikacja danych

Pomiar zużycia energii jako element kontroli nad domem

Dodatkowym elementem całej układanki był pomiar zużycia energii elektrycznej. Celem było nie tylko „widzieć wykresy”, ale mieć realne narzędzie do weryfikacji tego, co pojawia się później na rachunkach od zakładu energetycznego.

Dzięki temu inwestorzy mogą analizować zużycie, obserwować wpływ automatyzacji na pobór energii i budować dom oparty nie na przypuszczeniach, ale na rzeczywistych danych.

Światło i redundancja

Oświetlenie sterowane inteligentnie, ale nadal z pełną kontrolą ręczną

Wszystkie na stałe zamontowane źródła światła zostały połączone z przekaźnikami i sterownikami Shelly. Pozwoliło to na zdalne sterowanie, pomiar zużycia energii oraz tworzenie scen i zależności od pory dnia.

Jednocześnie każdy obwód zachował fizyczny przełącznik, który ma pierwszeństwo nad tym, co jest ustawione w panelu. To ważny element redundancji: nawet bardzo dobrze zaprojektowana automatyka nie może odbierać użytkownikowi prostoty działania.

Dzięki temu system daje wygodę scen świetlnych i automatyzacji, ale nie wymusza nowego sposobu życia. Użytkownik w każdej chwili może po prostu nacisnąć przycisk i uzyskać oczekiwany efekt.

Prywatność i codzienny rytm

Rolety i zasłony, które budują nastrój mieszkania

Rolety rzymskie i zasłony zostały wyposażone w elektryczne napędy i skonfigurowane tak, aby nocą zapewniać pełną prywatność, a rano delikatnie otwierać mieszkanie na dzień - chyba że użytkownik zdecyduje inaczej.

To jeden z tych elementów, który dobrze pokazuje różnicę między zwykłą automatyką a dobrze przemyślanym smart home. Chodzi nie tylko o funkcję otwierania, ale o spójny, przyjemny scenariusz codziennego życia, który wpisuje się w charakter wnętrza.

Sieć bez losowości

Wi-Fi i LAN zaplanowane jak infrastruktura, nie jak dodatek

Inwestorom bardzo zależało na wysokiej jakości sieci bezprzewodowej, ponieważ często pracują z domu i korzystają z różnych pomieszczeń. Priorytetem było stabilne i przewidywalne pokrycie całego mieszkania, bez przypadkowego doboru miejsc montażu punktów dostępowych.

Przygotowaliśmy heatmapę zasięgu Wi-Fi, dzięki której udało się dobrać odpowiednie punkty dostępowe i ich rozmieszczenie bez zgadywania. Równolegle zaplanowaliśmy również sieć LAN z myślą o pracy na dużych plikach przechowywanych lokalnie.

Wykorzystane zostały przewody i gniazda kategorii 7, co miało zabezpieczyć inwestycję również w dłuższej perspektywie. Założenie było proste: mieszkanie ma być nowoczesne nie tylko dziś, ale również za wiele lat.

Ciekawym dodatkiem było zaplanowanie punktu dostępowego tak, aby zapewnić inwestorowi wygodny dostęp do internetu także w dużej części pobliskiego parku. To detal, ale dobrze pokazuje sposób pracy: technologia ma odpowiadać na realny styl życia użytkownika.

Bezpieczeństwo i dostęp

Kamera balkonowa i domofon jako część jednego ekosystemu

Z punktu widzenia bezpieczeństwa zamontowana została kamera skierowana na balkon i drzwi balkonowe, aby zabezpieczyć mieszkanie na wypadek próby wtargnięcia od tej strony.

Istotnym elementem systemu został również domofon przy drzwiach wejściowych. Oprócz podstawowej funkcji rozmowy i podglądu umożliwia on wygodne metody dostępu, takie jak kod, karta w Apple Wallet czy Face ID, a także podgląd na osobę dzwoniącą i rozpoznawanie osób wchodzących do mieszkania.

Efekty

Projekt, który przełożył się na realny komfort i kontrolę

20%

oszczędności na cieple systemowym względem wcześniejszych doświadczeń inwestorów

15%

oszczędności na energii elektrycznej względem wcześniejszych doświadczeń inwestorów

100%

lokalnego dostępu do sterowania domem z poziomu przeglądarki

1

spójny system zamiast wielu osobnych, nieskoordynowanych urządzeń

Materiały projektowe

Wybrane elementy tej realizacji

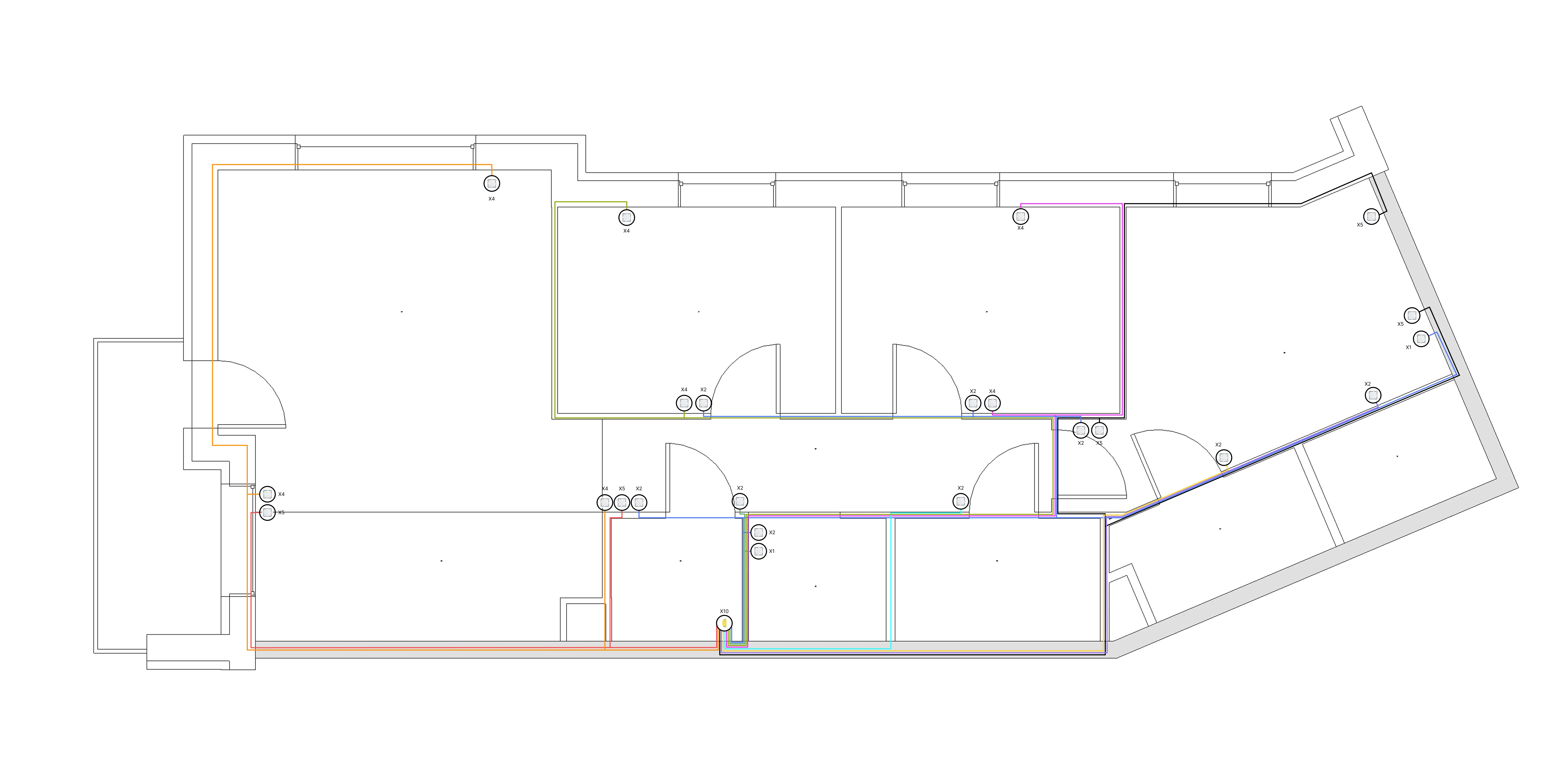
Schemat sterowania klimatyzacją na rzucie mieszkania z zaznaczonymi punktami i trasami instalacji
Projekt sterowania klimatyzacją - rozmieszczenie punktów oraz przebieg instalacji na rzucie mieszkania
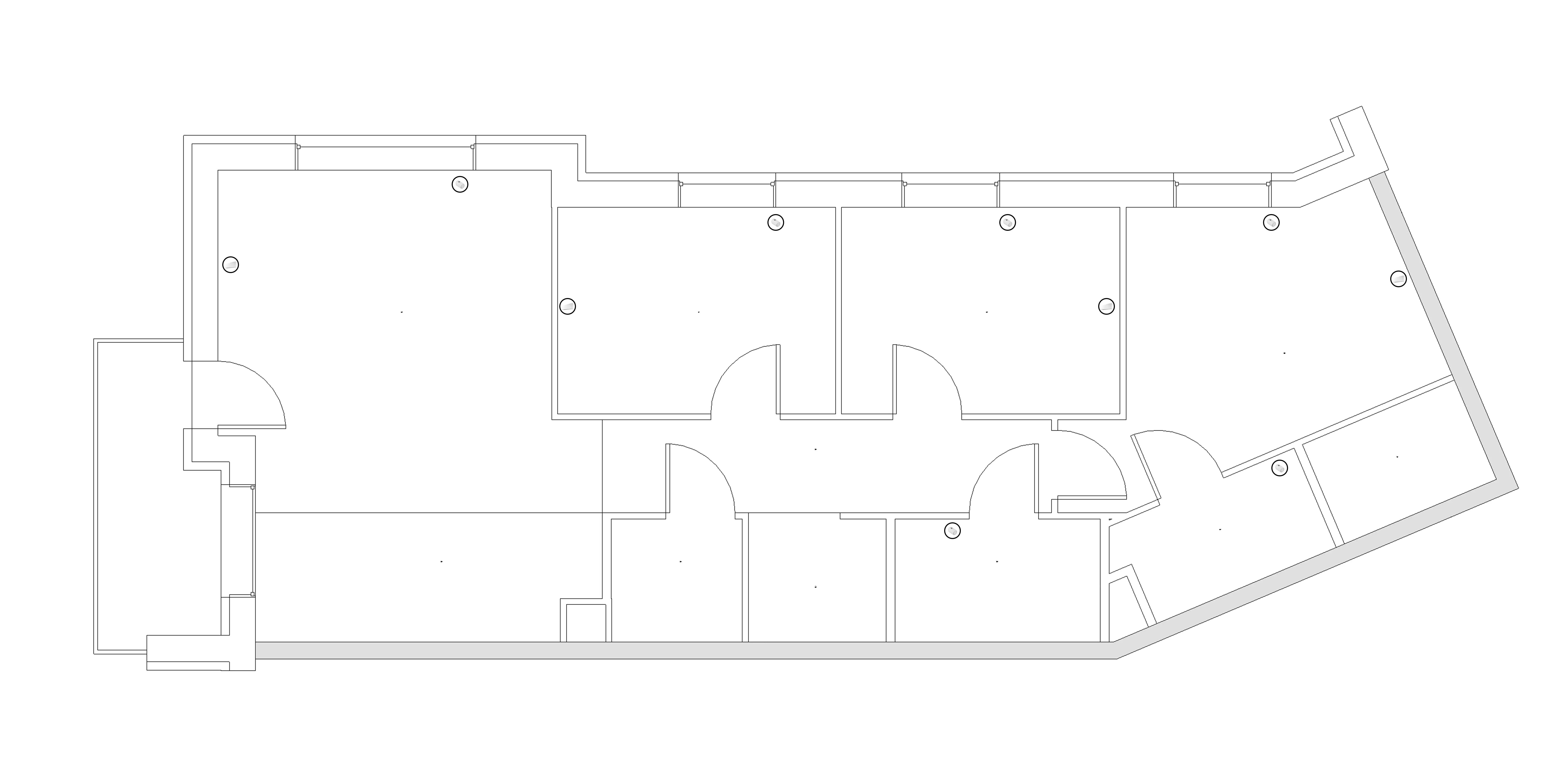
Projekt oświetlenia na rzucie mieszkania z rozmieszczeniem punktów świetlnych
Rozmieszczenie punktów oświetleniowych w całym mieszkaniu
Schemat sterowania oświetleniem na rzucie z podziałem na obwody i linie sterujące
Podział oświetlenia na obwody oraz sposób sterowania - widok na rzucie
Schemat sterowania zasłonami elektrycznymi na rzucie mieszkania
Projekt sterowania zasłonami - rozmieszczenie punktów i przewodów na rzucie
Szczegółowy schemat sterowania oświetleniem w kuchni z podziałem na obwody i przełączniki
Szczegółowa topologia sterowania oświetleniem - przypisanie obwodów do wejść i wyjść sterownika
Topologia systemu komfortu obejmującego klimatyzację i urządzenia IoT połączone przez MQTT
Integracja systemów komfortu - klimatyzacja oraz urządzenia IoT komunikujące się przez MQTT
Topologia instalacji oświetleniowej z centralnym sterowaniem i podziałem na strefy
Centralne sterowanie oświetleniem - podział na strefy i obwody w całym mieszkaniu
Schemat sterowania roletami i zasłonami elektrycznymi z wykorzystaniem modułów sterujących
System sterowania roletami i zasłonami - podział na strefy i logika działania
Mapa zasięgu Wi-Fi 5 GHz w mieszkaniu z rozmieszczeniem punktów dostępowych Ubiquiti
Heatmapa Wi-Fi 5 GHz - projekt pokrycia sygnałem i rozmieszczenie access pointów
Schemat zasięgu kamer monitoringu z wizualizacją pola widzenia i martwych stref
Projekt monitoringu - pokrycie kamerami i analiza pola widzenia
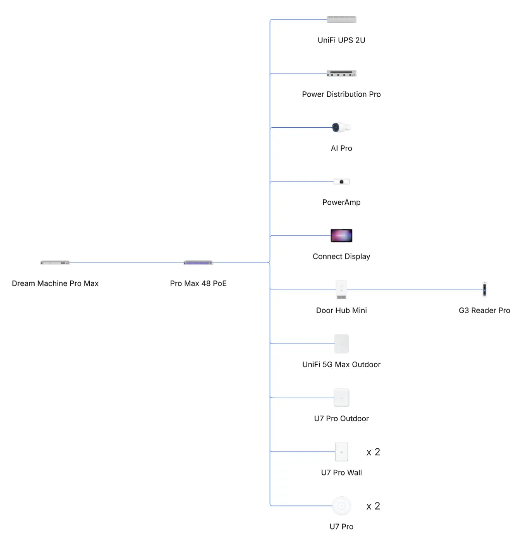
Topologia sieci LAN z urządzeniami Ubiquiti, przełącznikiem PoE i punktami końcowymi
Struktura sieci LAN - urządzenia, połączenia oraz dystrybucja PoE
Projekt szafy rack z urządzeniami sieciowymi, UPS i dystrybucją zasilania
Układ urządzeń w szafie rack - organizacja sprzętu i zasilania
Schemat połączeń w szafie rack z mapą portów i wykorzystaniem PoE
Mapowanie portów i połączeń w szafie rack - pełna kontrola infrastruktury
Kluczowe elementy techniczne
Lokalny serwer do zarządzania domem
Integracje HVAC bez zależności od chmury producenta
Shelly do sterowania oświetleniem i pomiaru energii
Czujniki temperatury i otwarcia okna
Przewody i gniazda kategorii 7
Punkty dostępowe Wi-Fi rozmieszczone na podstawie heatmapy
Inteligentny domofon z nowoczesnymi metodami dostępu
Lokalna kontrola nad mieszkaniem

Jednym z najważniejszych założeń tej realizacji było zapewnienie sterowania z poziomu lokalnego serwera i przeglądarki internetowej — bez konieczności uzależniania podstawowych funkcji domu od chmury producenta.

Podsumowanie

Efekt końcowy

W Marina V powstało mieszkanie, w którym technologia nie jest dodatkiem ani zbiorem funkcji „na pokaz”. To uporządkowany ekosystem, który poprawia komfort, obniża koszty eksploatacji, wspiera codzienny rytm życia i pozostaje spójny z eleganckim charakterem wnętrza.